Układ funkcjonalny wnętrza w praktyce – dlaczego kuchnia zaczyna się od planu?

Wyobraź sobie kuchnię, w której wszystko masz pod ręką. Otwierasz szafkę dokładnie tam, gdzie się tego spodziewasz. Stajesz przy blacie i nie robisz ani jednego zbędnego kroku. Taki efekt nie bierze się z inspiracji z Pinteresta. Bierze się z planu.
W tym artykule pokażę Ci czym jest układ funkcjonalny wnętrza, dlaczego to od niego zaczynam każdy projekt kuchni (i nie tylko) i co się dzieje, gdy ten etap zostanie pominięty. Jeśli planujesz kuchnię od zera lub zmiany w układzie domu czy mieszkania, czytaj dalej i zobacz, od czego naprawdę zaczyna się dobry projekt.
Spis treści
- 1. Co to jest układ funkcjonalny wnętrza?
- 1.1. Dlaczego zindywidualizowany układ funkcjonalny ma kluczowe znaczenie w procesie projektowania wnętrza?
- 2. Funkcjonalny układ mieszkania zaczyna się od planowania
- 2.1. Analiza potrzeb użytkowników i stylu życia
- 2.2. Strefy w mieszkaniu – logiczny podział przestrzeni
- 3. Kuchnia jako serce funkcjonalnego wnętrza
- 3.1. Projekt funkcjonalny kuchni – od rzutu pomieszczenia z góry do wygody
- 3.2. Trójkąt roboczy i ergonomia w kuchni
- 3.3. Blat roboczy, oświetlenie i strefy pracy
- 4. Dobry układ funkcjonalny – cechy i najczęstsze błędy
- 4.1. Czym charakteryzuje się odpowiedni układ funkcjonalny
- 4.2. Błędy wynikające z braku zaplanowanego układu funkcjonalnego
- 4.3. Tabela: Strefy kuchenne a najczęstsze błędy funkcjonalne
- 5. Projekt funkcjonalny mieszkania a dalsza aranżacja wnętrza
- 6. Dlaczego warto zaplanować układ funkcjonalny kuchni już na początku?
- 7. Planowanie układu funkcjonalnego – podsumowanie
- 8. Najczęściej zadawane pytania (FAQ)
Co to jest układ funkcjonalny wnętrza?
Układ funkcjonalny wnętrza to techniczny plan organizacji przestrzeni, który pokazuje rozmieszczenie pomieszczeń, ścian, ciągów komunikacyjnych, mebli oraz podstawowych sprzętów w skali. Najczęściej ma formę rzutu 2D z góry. Bez dekoracji. Bez kolorów. Bez stylu. To czysta informacja o tym, jak wnętrze ma działać na co dzień.
Mówiąc wprost: układ funkcjonalny odpowiada na pytanie, gdzie co się znajduje i dlaczego właśnie tam. Nie opisuje wyglądu wnętrza. Opisuje jego logikę.
W dobrze zaprojektowanym układzie funkcjonalnym:
- każda strefa ma jasno przypisaną funkcję,
- przejścia są drożne i mają realne szerokości,
- meble i sprzęty mają swoje miejsce wynikające z użytkowania, a nie z estetyki,
- codzienne czynności układają się w naturalną kolejność: wejście -> odkładanie -> przechowywanie -> praca -> odpoczynek.
To fundament całego projektu wnętrza. Jeśli na tym etapie pojawią się błędy, nie naprawią ich ani dobre materiały, ani drogie meble, ani efektowna wizualizacja.
Układ funkcjonalny zawsze tworzę w odniesieniu do:
- rzeczywistych wymiarów pomieszczeń,
- konkretnych potrzeb domowników,
- stylu życia, rytmu dnia i nawyków,
- ograniczeń technicznych takich jak piony, instalacje czy konstrukcja budynku.
Dlaczego zindywidualizowany układ funkcjonalny ma kluczowe znaczenie w procesie projektowania wnętrza?
Nie istnieje jeden uniwersalny, „dobry” układ. Dobry układ funkcjonalny zawsze jest dopasowany do konkretnej osoby i konkretnego wnętrza. Inaczej zaplanuję mieszkanie dla singla pracującego z domu, inaczej dla rodziny z dziećmi, a jeszcze inaczej dla pary, która dużo gotuje i rzadko jada poza domem.
Dlaczego to ma aż takie znaczenie?
Bo układ funkcjonalny decyduje o tym, czy:
- robisz kilka kroków czy kilkanaście przy tej samej czynności,
- meble się otwierają bez kolizji,
- dwie osoby mogą korzystać z kuchni jednocześnie,
- przestrzeń wspiera codzienne nawyki zamiast je utrudniać.
Układ funkcjonalny to pierwszy etap projektowania i jedyny moment, w którym najłatwiej wprowadzić realne zmiany. Wszystko, co pojawia się później- aranżacja, styl, kolory, materiały, powinno być konsekwencją dobrze zaplanowanej funkcji, nigdy odwrotnie.
Przeczytaj również –> Wizualizacja kuchni od A do Z – definicja, proces i realna wartość wizualizacji 3D


Funkcjonalny układ mieszkania zaczyna się od planowania
Układ wnętrza nie powstaje w trakcie wyboru płytek, ani przy zamawianiu mebli. Jeśli planujesz remont mieszkania, to właśnie na tym etapie warto wziąć pod uwagę realny sposób korzystania z przestrzeni, a nie tylko jej wygląd. Układ funkcjonalny powstaje na samym początku, kiedy pracuję na rzucie mieszkania z góry. To moment, w którym decyduję o układzie ścian, układzie pomieszczeń i relacjach między nimi.
Niezależnie od tego, czy urządzasz nowe mieszkanie, planujesz budowę domu od podstaw, czy zaczynasz remont- planowanie przestrzeni zawsze wygląda tak samo. Najpierw powstaje plan rozlokowania najważniejszych elementów architektury i wyposażenia, dopiero potem estetyka.
Układ funkcjonalny mieszkania to nie wizja. To konkretna decyzja o wykorzystaniu przestrzeni w Twoim domu lub mieszkaniu.
Przeczytaj również inny wartościowy wpis na moim blogu –> Mała kuchnia w bloku – praktyczne rozwiązania i inspiracje projektantki
Analiza potrzeb użytkowników i stylu życia
Projektowania układu funkcjonalnego nie zaczynam od metrażu. Zaczynam od ludzi. Układ funkcjonalny powinien uwzględniać potrzeby i stylu życia mieszkańców, bo to one definiują, jak przestrzeń będzie używana.
Inaczej zaplanuję wnętrze dla osoby pracującej z domu, inaczej dla rodziny z dziećmi, a jeszcze inaczej dla pary, która spędza dużo czasu poza domem. Analizuję rytm dnia, sposób przygotowywania posiłków, liczbę domowników, potrzeby związane z relaksem i przechowywaniem.
Zadaję bardzo konkretne pytania:
- gdzie odkładasz rzeczy po wejściu do domu,
- ile i co chcesz przechowywać,
- czy gotujesz codziennie czy okazjonalnie,
- czy jadalnia ma być osobnym miejscem, czy tylko stół jadalniany przy kuchni,
- czy sypialnia służy wyłącznie do spania, czy także do pracy lub relaksu.
Na tej podstawie rozplanowuję rozmieszczenie mebli, lokalizację szafy, liczbę miejsc do przechowywania oraz wielkość poszczególnych stref. Przemyślany układ funkcjonalny eliminuje przypadkowe decyzje, które później odbijają się na komforcie.
Dobrze zaplanowany układ funkcjonalny zapewnia komfort podczas wykonywania codziennych czynności, bo nie zmusza do improwizowania. Lodówka, zlew i strefa przygotowywania posiłków znajdują się tam, gdzie faktycznie z nich korzystasz. Ekspres do kawy nie ląduje na przypadkowym blacie, a sofa nie blokuje ciągów komunikacyjnych.
Przeczytaj również inny wartościowy wpis na moim blogu –> Kuchnia w kształcie litery L – jak świadomie zaprojektować ergonomiczny układ kuchni narożnej

Strefy w mieszkaniu – logiczny podział przestrzeni
Każdy układ funkcjonalny mieszkania lub domu opiera się na podziale na strefy. To podstawa, niezależnie od metrażu. W domu lub mieszkaniu zawsze wydzielam strefę dzienną, prywatną i techniczną.
Strefa dzienna obejmuje kuchnię, jadalnię i salon. To przestrzeń wspólna, intensywnie użytkowana, powiązana z ruchem i aktywnością. W małych mieszkaniach strefy te często się przenikają, dlatego maksymalne wykorzystanie dostępnej przestrzeni staje się priorytetem.
Strefa prywatna to sypialnia i łazienka. Tu liczy się spokój, wyciszenie i logiczne powiązania. Sypialnia nie powinna być przechodnia, a łazienka musi mieć sensowny dostęp do urządzeń sanitarnych i miejsca, by przechowywać niezbędne rzeczy bez chaosu.
Strefa techniczna obejmuje przechowywanie, szafy, schowki i zaplecze. To ona decyduje o porządku w całym wnętrzu. Jeśli nie zaplanujesz jej na etapie rzutu mieszkania, bałagan pojawi się bardzo szybko.
Układ funkcjonalny zapewnia maksymalne wykorzystanie przestrzeni tylko wtedy, gdy strefy są czytelne i nie kolidują ze sobą. W dobrze zaprojektowanym wnętrzu wiesz, gdzie odpoczywasz, gdzie pracujesz i gdzie odkładasz rzeczy. Dzięki temu układ funkcjonalny pozwala na maksymalne wykorzystanie potencjału Twojego mieszkania, bez kompromisów i improwizacji na późniejszym etapie.
Jeśli interesuje Cię tematyka aranżacji kuchni przeczytaj także –> Kuchnia z półwyspem – praktyczny przewodnik po funkcjonalnej aranżacji

Kuchnia jako serce funkcjonalnego wnętrza
Kuchnia to miejsce, w którym układ funkcjonalny wnętrza testuje się najszybciej. Tu każdy błąd wychodzi w pierwszym tygodniu użytkowania. Zbyt wąskie przejście. Brak miejsca przy blacie. Kolizja drzwiczek. Nielogiczne rozmieszczenie sprzętów.
Dlatego w projektach zawsze traktuję kuchnię jako punkt odniesienia dla całego mieszkania, a nie „jedno z pomieszczeń”.
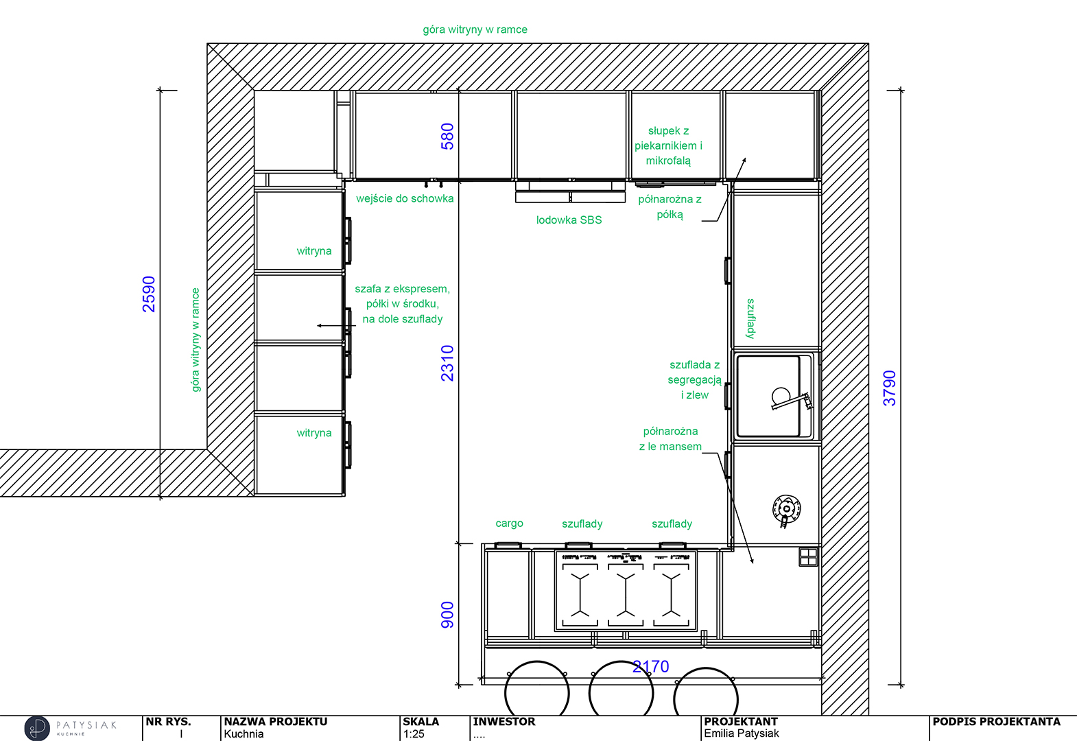
Projekt funkcjonalny kuchni – od rzutu pomieszczenia z góry do wygody
Projekt funkcjonalny kuchni zaczynam na rzucie, zanim pojawi się jakikolwiek front meblowy. Rzut decyduje o tym, czy kuchnia będzie wygodna, a nie kolor zabudowy.
Na tym etapie ustalam:
- rzeczywisty układ zabudowy kuchennej,
- lokalizację lodówki, zlewu i sprzętów do gotowania,
- szerokości przejść i stref pracy,
- miejsca, w których trzeba przechowywać najwięcej rzeczy.
Układ kuchenny musi wynikać z metrażu i proporcji pomieszczenia, ale też z tego, jak faktycznie korzystasz z kuchni. Inaczej projektuję kuchnię dla osoby, która codziennie gotuje, a inaczej dla kogoś, kto przygotowuje głównie szybkie posiłki.
Dobrze zaplanowany projekt funkcjonalny nie zmusza do omijania otwartych zmywarek ani do odkładania zakupów na losowy blat. Wszystko ma swoje miejsce, a ruch w kuchni jest płynny.



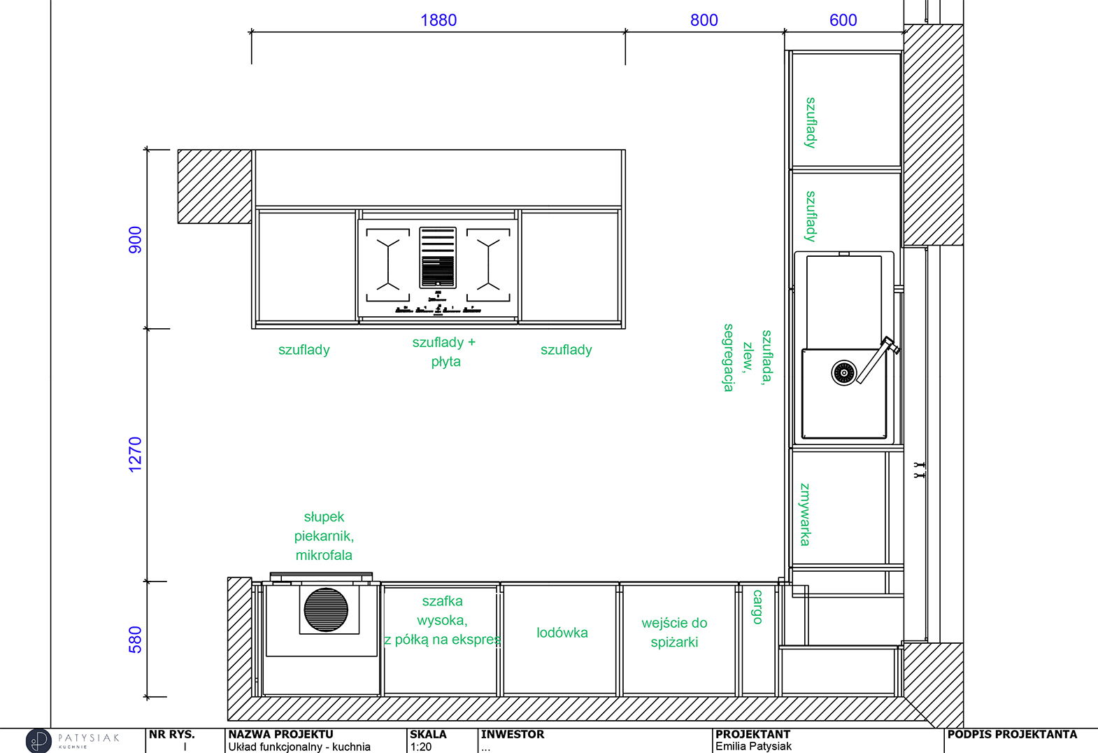
Trójkąt roboczy i ergonomia w kuchni
Trójkąt roboczy to jedna z podstawowych zasad ergonomii w kuchni, ale nie jest celem samym w sobie. Traktuj go jako narzędzie pomocnicze, a nie sztywny schemat, który trzeba odtworzyć w każdym wnętrzu.
W praktyce chodzi o to, by lodówka, zlew i strefa gotowania były rozmieszczone logicznie i bez zbędnych przebiegów. Jak dokładnie to zaplanować, w jakich sytuacjach zasada trójkąta ma sens, a kiedy lepiej ją zmodyfikować, opisałam szczegółowo w osobnym artykule: Trójkąt roboczy w kuchni: Projektowanie funkcjonalnej przestrzeni.
Tutaj wystarczy zapamiętać jedno: ergonomia zawsze ma pierwszeństwo przed symetrią i estetyką.
Blat roboczy, oświetlenie i strefy pracy
Blat roboczy to najczęściej niedoszacowany element projektu kuchni. Za mały, źle oświetlony albo pocięty sprzętami przestaje pełnić swoją funkcję. A to właśnie blat odpowiada za realną wygodę.
W projekcie funkcjonalnym wyraźnie wydzielam strefy:
- strefę przygotowywania,
- strefę zmywania,
- strefę gotowania,
- miejsce do odkładania.
Każda z nich potrzebuje ciągłej powierzchni roboczej, a nie przypadkowych fragmentów. Nawet najładniejsza kuchnia nie będzie wygodna, jeśli nie masz gdzie postawić deski, garnka czy zakupów.
Równie ważne jest oświetlenie. Światło ogólne nie wystarcza. Blat roboczy musi być doświetlony punktowo, dokładnie tam, gdzie pracujesz. Źle zaplanowane oświetlenie męczy wzrok i obniża komfort użytkowania szybciej niż niewygodna szafka.
Dobrze zaprojektowana kuchnia nie zmusza do kompromisów. Wszystko wynika z planu, a plan wynika z funkcji. I właśnie dlatego kuchnia tak mocno wpływa na odbiór całego wnętrza.
Przeczytaj również –> Ergonomia w kuchni krok po kroku – strefy robocze jako fundament funkcjonalnego projektu
Szukasz funkcjonalnych rozwiązań do swojej kuchni?
i zaprojektujmy ją razem.
Dobry układ funkcjonalny – cechy i najczęstsze błędy
Czym charakteryzuje się odpowiedni układ funkcjonalny
Dobry układ funkcjonalny rozpoznasz po tym, że nie zwraca na siebie uwagi. Po prostu działa. Nie musisz się zastanawiać, gdzie coś postawić ani którędy przejść. Przestrzeń prowadzi Cię intuicyjnie.
Odpowiedni układ funkcjonalny:
- wynika z realnych potrzeb użytkowników, a nie z gotowego schematu,
- ma czytelny podział na strefy i logiczne powiązania między nimi,
- zapewnia swobodne przejścia bez kolizji z meblami i drzwiami,
- pozwala korzystać z wnętrza bez improwizowania.
W dobrze zaplanowanym wnętrzu każda decyzja ma swoje uzasadnienie. Szafa stoi tam, gdzie faktycznie odkładasz rzeczy. Sofa nie blokuje ciągu komunikacyjnego. Kuchnia nie wymusza zbędnych kroków. Łazienka daje miejsce na wygodne korzystanie i przechowywanie, zamiast walki o każdy centymetr.
Dobry układ funkcjonalny pracuje na funkcjonalność całego mieszkania, bo wspiera codzienne nawyki zamiast je komplikować. Dzięki temu wnętrze pozostaje wygodne także po latach, kiedy opadnie efekt nowości.
Przeczytaj również –> Jaka powinna być wysokość blatu w kuchni? Praktyczne zasady dotyczące optymalnej wysokości blatu kuchennego
Błędy wynikające z braku zaplanowanego układu funkcjonalnego
Brak planu zawsze wychodzi w użytkowaniu. Czasem od razu. Czasem po kilku tygodniach. Najczęściej wtedy, gdy nie da się już nic łatwo zmienić.
Do najczęstszych błędów należą:
- przypadkowe rozmieszczenie mebli, które skraca przejścia,
- kolizje drzwi, szafek i sprzętów,
- brak miejsca do przechowywania i odkładania,
- źle ustawiona kuchnia, w której praca jest chaotyczna,
- łazienka zaprojektowana pod wygląd, a nie codzienne użytkowanie,
- strefy, które się przenikają i przeszkadzają sobie nawzajem.
Często widzę wnętrza, w których wszystko „ładnie wygląda”, ale nic nie działa płynnie. Lodówka otwiera się na ścianę. Zmywarka blokuje przejście. Szafa jest za płytka, by cokolwiek w niej przechowywać. Sofa stoi tam, gdzie powinna być komunikacja.
Te problemy nie wynikają ze złych materiałów ani braku budżetu. Wynikają z pominięcia etapu planowania. Bez przemyślanego układu funkcjonalnego nawet najlepsza aranżacja zaczyna męczyć szybciej, niż się spodziewasz.
Dlatego zawsze powtarzam jedno: jeśli coś w mieszkaniu Ci przeszkadza na co dzień, to nie jest kwestia gustu. To sygnał, że układ funkcjonalny nie został dobrze zaplanowany.
Przeczytaj również –> Wysokość szafek kuchennych – ile powinna mieć dolna i górna zabudowa?
Tabela: Strefy kuchenne a najczęstsze błędy funkcjonalne
Większość problemów w kuchni nie wynika z metrażu ani budżetu, ale z błędnie zaplanowanych stref. Poniższa tabela pokazuje, jak powinien wyglądać funkcjonalny układ kuchni i jakie błędy najczęściej pojawiają się wtedy, gdy projekt zaczyna się od wizualizacji, a nie od planu.
| Strefa kuchni | Dobrze zaplanowana funkcja | Najczęstszy błąd |
|---|---|---|
| Lodówka | Blisko wejścia i strefy odkładania zakupów | Otwiera się na ścianę lub blokuje przejście |
| Zlew | Pomiędzy lodówką a gotowaniem, z miejscem po bokach | Brak blatu roboczego do odkładania |
| Strefa przygotowywania | Ciągły, dobrze oświetlony blat | Blat pocięty sprzętami i szafkami |
| Gotowanie | Logiczna odległość od zlewu i blatu | Płyta w narożniku lub przy ścianie |
| Zmywarka | Blisko zlewu, bez kolizji z ciągami | Otwarta blokuje przejście |
| Przechowywanie | Dopasowane do nawyków i ilości rzeczy | Szafki przypadkowe, brak miejsca |
| Komunikacja | Swobodne przejścia dla 1–2 osób | Kolizje frontów i sprzętów |

Projekt funkcjonalny mieszkania a dalsza aranżacja wnętrza
Projekt funkcjonalny mieszkania wyznacza ramy dla wszystkiego, co dzieje się później. Aranżacja wnętrza nie powinna korygować funkcji, tylko ją podkreślać. Jeśli układ został dobrze zaplanowany, kolejne decyzje stają się prostsze i bardziej spójne.
Na tym etapie nie zastanawiasz się już, czy sofa się zmieści, tylko jaka będzie. Nie analizujesz, gdzie postawić stół, tylko jaki stół pasuje do zaplanowanej jadalni. Układ funkcjonalny porządkuje proces projektowy i eliminuje przypadkowość.
Dobrze przygotowany projekt funkcjonalny:
- jasno określa rozmieszczenie mebli,
- narzuca naturalne kierunki komunikacji,
- wyznacza proporcje między strefami,
- daje punkt odniesienia dla materiałów, kolorów i oświetlenia.
Dzięki temu aranżacja wnętrza nie jest zbiorem ładnych elementów, tylko konsekwentnym rozwinięciem planu. Fronty kuchenne, rodzaj blatu, oprawy oświetleniowe czy zabudowy stolarskie pracują na wcześniej ustaloną funkcję, a nie próbują ją maskować.
Bardzo często widzę projekty, w których estetyka próbuje „ratować” błędy funkcjonalne. Zbyt duża sofa, bo była ładna. Za mały stół, bo pasował wizualnie. Zabudowa, która wygląda efektownie, ale utrudnia korzystanie z przestrzeni. To zawsze prowadzi do kompromisów w codziennym użytkowaniu.
Jeśli projekt funkcjonalny został dobrze przemyślany, aranżacja wnętrza staje się logicznym następstwem, a nie polem do gaszenia pożarów. Styl, materiały i detale mają wtedy sens, bo wynikają z realnego sposobu korzystania z mieszkania, a nie z chwilowej inspiracji.
Przeczytaj mój inny wpis w temacie mebli kuchennych –> Meble kuchenne do sufitu – czy warto zrobić zabudowę kuchenną pod sufit?

Dlaczego warto zaplanować układ funkcjonalny kuchni już na początku?
Kuchnia jest jednym z najbardziej obciążonych pomieszczeń w całym mieszkaniu. Korzystasz z niej codziennie, często kilka razy dziennie, wykonując powtarzalne czynności w określonej kolejności. Jeśli układ funkcjonalny kuchni nie powstanie na początku, każdy kolejny etap projektu zacznie generować kompromisy.
Planowanie kuchni „przy okazji” albo po wyborze mebli zawsze kończy się korektami. Przesuwaniem sprzętów. Zmienianiem zabudowy. Rezygnacją z wygodnych rozwiązań, bo coś się już nie mieści. Tymczasem dobrze zaplanowany układ funkcjonalny ustawia cały proces od samego startu.
Na wczesnym etapie:
- łatwo dopasować kuchnię do układu całego mieszkania,
- bezproblemowo rozplanować instalacje,
- świadomie zdecydować o wielkości i kształcie zabudowy,
- uniknąć kolizji między funkcją a estetyką.
Kiedy kuchnia powstaje na rzucie, a nie na wizualizacji, masz kontrolę nad ergonomią, a nie tylko nad wyglądem. Wiesz, gdzie stanie lodówka, ile realnie potrzebujesz blatu, gdzie otworzy się zmywarka i czy dwie osoby będą mogły swobodnie korzystać z przestrzeni jednocześnie.
W praktyce oznacza to mniej błędów, mniej kosztownych zmian i większą przewidywalność całej realizacji. Kuchnia zaplanowana na początku nie wymaga „ratowania” w trakcie. Po prostu działa.
Dlatego zawsze powtarzam, że kuchnia nie zaczyna się od frontów ani sprzętów. Kuchnia zaczyna się od planu. Jeśli ten etap zostanie dobrze przemyślany, cała reszta układa się naturalnie. Jeśli zostanie pominięty, każdy kolejny krok będzie próbą dopasowania się do decyzji, które zapadły zbyt późno.
Przeczytaj również inny obszerny wpis na moim blogu –> Kuchnia otwarta na salon – definicja, inspiracje i najczęstsze błędy w aranżacji kuchni z salonem

Planowanie układu funkcjonalnego – podsumowanie
Układ funkcjonalny decyduje o tym, czy mieszkanie działa w codziennym użytkowaniu, a nie o tym, jak prezentuje się na wizualizacji. To on porządkuje przestrzeń, wyznacza strefy, ustawia kuchnię, łazienkę i przechowywanie w logicznej kolejności. Bez niego nawet najlepiej zaprojektowane wnętrze szybko zaczyna męczyć.
Jeśli plan powstaje na początku, kolejne decyzje są konsekwencją funkcji, a nie próbą jej naprawiania. Kuchnia jest wygodna, komunikacja czytelna, a aranżacja spójna z realnym stylem życia.
Jeśli planujesz remont, urządzasz nowe mieszkanie albo chcesz mieć kuchnię, która naprawdę działa, zacznij od układu funkcjonalnego. Skontaktuj się ze mną i zaplanuj wnętrze tak, żeby było dopasowane do Ciebie, a nie do gotowego schematu.
Najczęściej zadawane pytania (FAQ)
Czym różni się układ funkcjonalny od aranżacji wnętrza?
Kiedy robi się układ funkcjonalny mieszkania?
Jakie informacje są potrzebne do zaplanowania układu funkcjonalnego?
Jak sprawdzić, czy układ funkcjonalny jest dobrze zaplanowany?
Czy da się poprawić układ funkcjonalny bez wyburzania ścian?
Od czego zacząć, jeśli chcę zaplanować układ funkcjonalny kuchni?
Czy projekt funkcjonalny zmniejsza koszty wykończenia?
Kiedy zgłosić się do projektantki wnętrz?
Szukasz funkcjonalnych rozwiązań do swojej kuchni?
i zaprojektujmy ją razem.
Układ funkcjonalny wnętrza w praktyce – dlaczego kuchnia zaczyna się od planu?
