Mała kuchnia w bloku – praktyczne rozwiązania i inspiracje projektantki

Mała kuchnia w bloku potrafi być wyzwaniem- za wąsko, za ciemno, za mało miejsca. Każdy centymetr ma znaczenie i wystarczy kilka nieprzemyślanych decyzji, by codzienne korzystanie z kuchni stało się uciążliwe. W mojej pracy projektantki wnętrz wielokrotnie mierzyłam się z takimi realizacjami – od pomieszczeń o szerokości 180 cm po nieustawne aneksy bez okna. Z doświadczenia wiem, że dobrze zaplanowany układ i dopasowana zabudowa potrafią całkowicie odmienić takie wnętrza.
W tym artykule pokażę Ci praktyczne pomysły na aranżację małej kuchni, które pozwolą stworzyć funkcjonalne i stylowe miejsce nawet przy niewielkim metrażu. Znajdziesz tu konkretne układy mebli, sprawdzone systemy do przechowywania, optyczne triki powiększające wnętrze, przykłady moich realizacji oraz najczęstsze błędy, których warto unikać. Zapraszam do lektury!
Spis treści
- 1. Wyzwania przy aranżacji małej kuchni w bloku
- 1.1. Dlaczego małe kuchnie w blokach wymagają sprytnych rozwiązań
- 1.2. Jak połączyć funkcjonalność z estetyką w małej kuchni
- 2. Układ funkcjonalny małej kuchni
- 2.1. Zasada trójkąta roboczego – ergonomia w praktyce
- 2.2. Mała kuchnia w kształcie litery L – wygoda i przestrzeń w jednym
- 2.3. Wąska kuchnia w bloku – jak zachować komfort i porządek
- 3. Zabudowa i meble – jak urządzić kuchnię funkcjonalnie
- 3.1. Zabudowa po sufit – sposób na maksymalne wykorzystanie przestrzeni
- 3.2. Fronty bez uchwytów i gładkie powierzchnie – prosty sposób na optyczne powiększenie małej kuchni
- 3.3. Sprytne patenty na przechowywanie w małej kuchni – szafki narożne, cargo i wysuwane półki
- 4. Jakie AGD wybrać do małej kuchni w bloku?
- 5. Optyczne powiększenie kuchni – triki projektantki
- 5.1. Kolory, które powiększają przestrzeń – biel, pastele, jasne drewno
- 5.2. Materiały o odbijającej fakturze – połysk, szkło, lacobel
- 5.3. Jak oświetlenie w małej kuchni wpływa na postrzeganie przestrzeni
- 6. Najczęstsze błędy przy urządzaniu małej kuchni
- 7. Mała kuchnia w bloku – inspiracje projektantki
- 7.1. Aranżacja małej kuchni w bloku – przykład mojej realizacji
- 7.2. Projekt niewielkiej kuchni w bloku – przykład z mojej realizacji
- 7.3. Ulubione triki projektantki na funkcjonalną i piękną kuchnię
- 7.4. 5 kluczowych zasad do zapamiętania podczas urządzania małej kuchni w bloku
- 8. Podsumowanie – jak urządzić małą kuchnię marzeń
- 9. FAQ – najczęściej zadawane pytania
Wyzwania przy aranżacji małej kuchni w bloku
Wnętrza w blokach rzadko bywają idealne. Zwłaszcza kuchnie – często niedoświetlone, nieustawne i zwyczajnie za małe, by zmieścić wszystkie meble i sprzęty niezbędne do codziennego funkcjonowania.. To nie znaczy, że trzeba iść na kompromisy. Wręcz przeciwnie – mała kuchnia daje pole do pokazania, jak wiele da się osiągnąć dzięki przemyślanemu projektowi.
Dlaczego małe kuchnie w blokach wymagają sprytnych rozwiązań
W kuchniach w blokach często spotykam się z ograniczeniami, które pozornie wydają się nie do przeskoczenia. Ale to właśnie one stają się impulsem do poszukiwania nieszablonowych rozwiązań i zaaranżowania przestrzeni na nowo.
Pomieszczenia bywają bardzo wąskie – często mają mniej niż 60 cm głębokości blatu roboczego lub niewielką szerokość całego wnętrza. Wysokość stropów bywa niższa, a poszczególnych elementów wyposażenia nie da się swobodnie przestawić. W starszych blokach kuchnie są oddzielone ścianami nośnymi, których nie da się łatwo zlikwidować.
W takich przypadkach stawiam na precyzyjne planowanie mebli na wymiar. Każdy centymetr liczy się podwójnie – od szafki typu cargo po zlew jednokomorowy. To pozwala wygospodarować więcej przestrzeni i zachować porządek nawet w najmniejszej kuchni.
Może Cię również zainteresować –> Kuchnia na wymiar czy modułowa – co wybrać i dlaczego? Porównanie krok po kroku

Jak połączyć funkcjonalność z estetyką w małej kuchni
Mała kuchnia nie musi być ciasna ani nudna. Klucz to takie rozplanowanie przestrzeni, które łączy praktyczność z przyjemnością przebywania we wnętrzu.
- Zacznij od układu – dobrze zaplanowane strefy pracy to podstawa.
- Dobierz meble, które nie tylko pomieszczą wszystko, ale też nie zdominują wnętrza.
- Wprowadź optyczne triki – kolor, światło i materiały naprawdę robią różnicę.
- Zadbaj o szczegóły – uchwyty, linie zabudowy, fronty, światło podszafkowe.
Mała kuchnia w bloku nie musi wyglądać jak kompromis. Może być wygodna, piękna i w pełni odpowiadająca na Twoje potrzeby. W dalszej części artykułu pokażę Ci, jak ja rozwiązuję problemy aranżacyjne małych kuchni.
Układ funkcjonalny małej kuchni
Mała przestrzeń nie wybacza błędów. Ergonomia i planowanie stref roboczych decydują o tym, czy kuchnia działa na co dzień – czy tylko dobrze wygląda na wizualizacji.
Zasada trójkąta roboczego – ergonomia w praktyce
Dobrze zaplanowana kuchnia to taka, w której możesz płynnie przechodzić między lodówką, zlewem a płytą grzewczą – bez zbędnego kręcenia się w kółko.
- Lodówka, zlew i kuchenka powinny tworzyć trójkąt roboczy, w którym odległości są krótkie, ale nie za ciasne.
- W wąskich, jednorzędowych kuchniach, gdzie trójkąt jest niemożliwy, kluczowe staje się oddzielenie stref – np. lodówki i piekarnika – ciągłym blatem roboczym.
- Idealna długość blatu między strefami to minimum 120 cm – pozwala wygodnie przygotowywać posiłki bez ścisku.
W mojej pracy często zaczynam od rysowania trójkąta roboczego. Czasem udaje się go „wcisnąć” nawet w najmniejszą przestrzeń, czasem trzeba go sprytnie zamaskować liniowym układem, który działa równie dobrze.

Projekt: Emilia Patysiak | Patysiak Kuchnie
Mała kuchnia w kształcie litery L – wygoda i przestrzeń w jednym
Ten układ to mój ulubiony kompromis między ergonomią a przestrzenią – mała kuchnia w kształcie litery L sprawdza się zarówno w zamkniętych kuchniach, jak i w aneksach.
- Kształt litery L umożliwia naturalny podział na strefy i często pozwala zostawić miejsce na mały stół lub dodatkowy blat roboczy.
- W kuchni w bloku układ L pozwala zagospodarować dwa kąty – jeden często wykorzystuję na system LeMans.
- Dzięki temu układowi można łatwiej zachować ciągłość zabudowy, co wpływa na komfort i estetykę.
W wielu moich projektach w blokach właśnie układ L był punktem wyjścia – sprawdza się nawet przy szerokości 180–200 cm, jeśli dobrze rozplanuje się moduły i dobierze AGD w wersji slim.

Projekt: Emilia Patysiak | Patysiak Kuchnie
Wąska kuchnia w bloku – jak zachować komfort i porządek
Wąska kuchnia nie musi oznaczać klaustrofobii. Kluczem jest ciągłość blatu, dobra głębokość szafek i brak „przeszkadzaczy” w przestrzeni.
- W kuchniach jednorzędowych stawiam na maksymalne uproszczenie linii zabudowy – bez wystających uchwytów i z gładkimi frontami.
- Dwurzędowe układy sprawdzają się tylko przy minimalnym przejściu 90 cm – wtedy jedna ściana to strefa robocza, a druga przechowywanie.
- W takich projektach zależy mi na ciągłym, funkcjonalnym blacie roboczym – bez przerw, narożników, podziałów.
Jeśli kuchnia jest naprawdę wąska, często stosuję otwarte półki zamiast górnych szafek i montuję oświetlenie punktowe, które „otwiera” przestrzeń od góry.
Zabudowa i meble – jak urządzić kuchnię funkcjonalnie
W małej kuchni na wymiar nie ma miejsca na przypadek. Wszystko – od układu mebli kuchennych po dobór akcesoriów kuchennych – powinno działać na Twoją korzyść. Każdą zabudowę projektuję indywidualnie, dopasowując ją do metrażu i stylu życia domowników.
Zabudowa po sufit – sposób na maksymalne wykorzystanie przestrzeni
Wysoka zabudowa to jeden z najskuteczniejszych sposobów, by zmieścić więcej bez poszerzania kuchni. W kuchniach o niewielkim metrażu, gdzie powierzchni brakuje, a rzeczy przybywa, górne szafki aż po sufit rozwiązują problem miejsca na przechowywanie. W wyższych partiach umieszczam rzeczy sezonowe, rzadko używane sprzęty albo zapasy – dostęp do nich jest trudniejszy, ale w codziennym użytkowaniu to nie przeszkadza. Taka zabudowa eliminuje też pustą przestrzeń nad szafkami, która często tylko zbiera kurz i wprowadza chaos wizualny. A przy odpowiednio dobranych frontach – wygląda po prostu estetycznie.
Przeczytaj również inny wpis na moim blogu –> Wysokość szafek kuchennych – ile powinna mieć dolna i górna zabudowa?

Fronty bez uchwytów i gładkie powierzchnie – prosty sposób na optyczne powiększenie małej kuchni
W małych pomieszczeniach detale mają ogromne znaczenie. Dlatego często rezygnuję z wystających uchwytów na rzecz systemów tip-on, frezów albo ukrytych listew. Gładka powierzchnia mebli daje poczucie porządku i przestrzeni – nic nie zakłóca linii zabudowy, nic nie „kłuje” w oczy. Przy bardziej odważnych aranżacjach stosuję połysk lub szkło – odbijają światło i rozjaśniają wnętrze, co w kuchni bez okna robi ogromną różnicę. Te rozwiązania wyglądają oszczędnie, elegancko i lekko.
Sprytne patenty na przechowywanie w małej kuchni – szafki narożne, cargo i wysuwane półki
Dobre przechowywanie to nie kwestia liczby szafek, tylko ich funkcjonalności. W niewielkich kuchniach stosuję cienkie cargo, relingi, szuflady z pełnym wysuwem – wszystko po to, by łatwo sięgać po to, czego akurat potrzebujesz. Dzięki takim rozwiązaniom zyskujesz więcej porządku, a kuchnia pracuje razem z Tobą.
W narożnikach najczęściej montuję systemy LeMans lub karuzele obrotowe – dostęp do głębokich zakamarków jest wtedy wygodny i bezproblemowy. Wąskie przestrzenie między modułami wykorzystuję na cargo – idealne na przyprawy, butelki czy środki czystości. Korzystam z rozwiązań takich marek jak Blum, Peka czy Rejs – sprawdzonych i trwałych w codziennym użytkowaniu.
Więcej na temat systemów przechowywania przeczytasz w innym moim wpisie –> Kuchnia, która pracuje razem z Tobą – systemy przechowywania i ergonomia z marką PEKA
Szukasz funkcjonalnych rozwiązań do swojej kuchni?
i zaprojektujmy ją razem.
Jakie AGD wybrać do małej kuchni w bloku?
W małej kuchni kluczem jest sprytny dobór AGD, który łączy funkcjonalność z estetyką. Stawiam na kompaktowe i zabudowane sprzęty, które nie przytłaczają wnętrza i tworzą spójną całość z meblami. W praktyce najlepiej sprawdzają się:
- zmywarki i piekarniki 45 cm – pełna funkcjonalność przy minimalnym metrażu,
- piekarnik z funkcją mikrofali lub płyta indukcyjna slim – sprzęty „2 w 1”, które oszczędzają miejsce,
- lodówki podblatowe – zyskujesz dodatkowy blat roboczy,
- zabudowa AGD – gwarancja porządku i wizualnej harmonii, szczególnie w aneksach kuchennych.
Dobrze dobrane urządzenia nie tylko ułatwiają codzienne gotowanie, ale też optycznie powiększają przestrzeń i wprowadzają do kuchni elegancki, nowoczesny charakter.
Optyczne powiększenie kuchni – triki projektantki
Kolory, które powiększają przestrzeń – biel, pastele, jasne drewno
W małych kuchniach najlepiej sprawdzają się jasne barwy, które odbijają światło i dodają przestrzeni. Czysta biel, delikatne szarości, jasne beże czy drewno w odcieniu brzozy lub jesionu dają efekt większego i świeżego wnętrza.
- Zestawienie białych frontów z jasnym blatem to klasyk, który się nie starzeje.
- Pastele dobrze działają jako uzupełnienie – np. w postaci płytki nad blatem lub dodatków.
- Jasne drewno ociepla przestrzeń, nie obciążając jej wizualnie.
W projektach bez dostępu do naturalnego światła stosuję te kolory jako bazę, a kontrast wprowadzam dodatkami – np. ciemniejszymi uchwytami, lampami albo sprzętem AGD.
Materiały o odbijającej fakturze – połysk, szkło, lacobel
Odbicie światła to jeden z najskuteczniejszych trików na wizualne powiększenie kuchni. Dlatego w małych wnętrzach często sięgam po fronty w połysku, szkło lakierowane (lacobel) i subtelnie odbijające płytki.
- Połysk optycznie pogłębia wnętrze – sprawdza się na frontach, ale też na blatach.
- Lacobel za blatem dodaje elegancji i rozjaśnia strefę roboczą.
- Szkło hartowane można też wykorzystać jako fronty w górnych szafkach – wprowadza lekkość.
Stosuję te materiały z umiarem, żeby kuchnia nie wyglądała „laboratoryjnie”. Klucz to balans – połączenie powierzchni matowych i błyszczących daje najbardziej naturalny efekt.
Na ten temat przeczytasz więcej w innym moim wpisie –> Meble kuchenne matowe czy w połysku – co lepiej sprawdza się w codziennym użytkowaniu kuchni?
Jak oświetlenie w małej kuchni wpływa na postrzeganie przestrzeni
Dobre światło potrafi całkowicie odmienić odbiór kuchni. W małych wnętrzach chodzi nie tylko o jasność, ale o odpowiednie rozmieszczenie źródeł światła. Rozplanowanie punktów świetlnych zaczynam już na etapie układu zabudowy.
- Światło ogólne równomiernie rozświetla całe pomieszczenie – dobrze, jeśli jest rozproszone i neutralne.
- Oświetlenie zadaniowe pod szafkami to obowiązkowy element – doświetla blat i poprawia komfort pracy.
- Światło akcentujące (np. reflektory lub taśmy LED nad szafkami) buduje klimat i optycznie podnosi sufit.
Odpowiednio zaplanowane światło sprawia, że kuchnia wygląda na większą i bardziej uporządkowaną. A co najważniejsze – dobrze się w niej po prostu funkcjonuje.
Więcej o oświetleniu w kuchni przeczytasz w innym moim wpisie –> Jakie oświetlenie do kuchni? Trendy i ponadczasowe klasyki

Poniżej znajdziesz konkretne patenty, które najczęściej wdrażam w mieszkaniach w bloku — wraz z realnymi korzyściami dla użytkowników.
| Rozwiązanie w małej kuchni | Co zyskujesz |
|---|---|
| Zabudowa do sufitu | Maksymalne wykorzystanie przestrzeni, brak kurzu na górze, spójna estetyka |
| Fronty bez uchwytów / frezowane | Wizualny porządek, więcej „oddechu”, optyczne powiększenie wnętrza |
| AGD kompaktowe (45 cm, piekarnik z mikrofalą) | Pełna funkcjonalność przy mniejszym metrażu |
| Szafki narożne z systemem LeMans / karuzele | Wygodny dostęp do narożników i pełne wykorzystanie tej przestrzeni |
| Wąskie cargo (15–30 cm) | Idealne miejsce na przyprawy i butelki, brak „martwych centymetrów” |
| Jasne fronty i drewno w jasnym odcieniu | Więcej światła i lekkości, optyczne powiększenie |
| Lakierowane fronty / szkło / lacobel | Odbijają światło i rozjaśniają kuchnię, szczególnie przy braku okna |
| Oświetlenie LED pod szafkami | Komfort pracy i wrażenie większej, jaśniejszej przestrzeni |
| Otwarte półki w małych fragmentach | Lekkość wizualna, możliwość dekoracji bez przytłoczenia |
| Półwysep zamiast stołu | Dodatkowy blat + miejsce do jedzenia + podział przestrzeni z salonem |
Najczęstsze błędy przy urządzaniu małej kuchni
Mała kuchnia może działać perfekcyjnie – ale tylko wtedy, gdy unikasz kilku typowych błędów. Widziałam je wiele razy: w mieszkaniach po remoncie, w nowych lokalach, w projektach DIY. Oto te, które zdarzają się najczęściej – i których zdecydowanie warto unikać.
- Zbyt ciemne kolory i przeładowane wnętrze. Nadmiar barw, wzorów i dekoracji przytłacza przestrzeń. Ciemne fronty i zbyt dużo dodatków optycznie ją pomniejszają. Lepiej postawić na jasną bazę i kilka subtelnych akcentów, które dodadzą lekkości.
- Brak ergonomii i nieprzemyślany układ AGD. Lodówka obok piekarnika, brak blatu przy zlewie czy źle rozmieszczone sprzęty utrudniają codzienne gotowanie. W małej kuchni liczy się precyzja – najpierw funkcja, potem forma.
- Nieodpowiednie oświetlenie i brak spójności stylu. Jedna lampa sufitowa to za mało – blat musi być dobrze doświetlony. Chaos stylistyczny, różne uchwyty i kolory zaburzają porządek. Spójna koncepcja i dobrze rozplanowane światło tworzą harmonijną całość.
Mała kuchnia w bloku – inspiracje projektantki
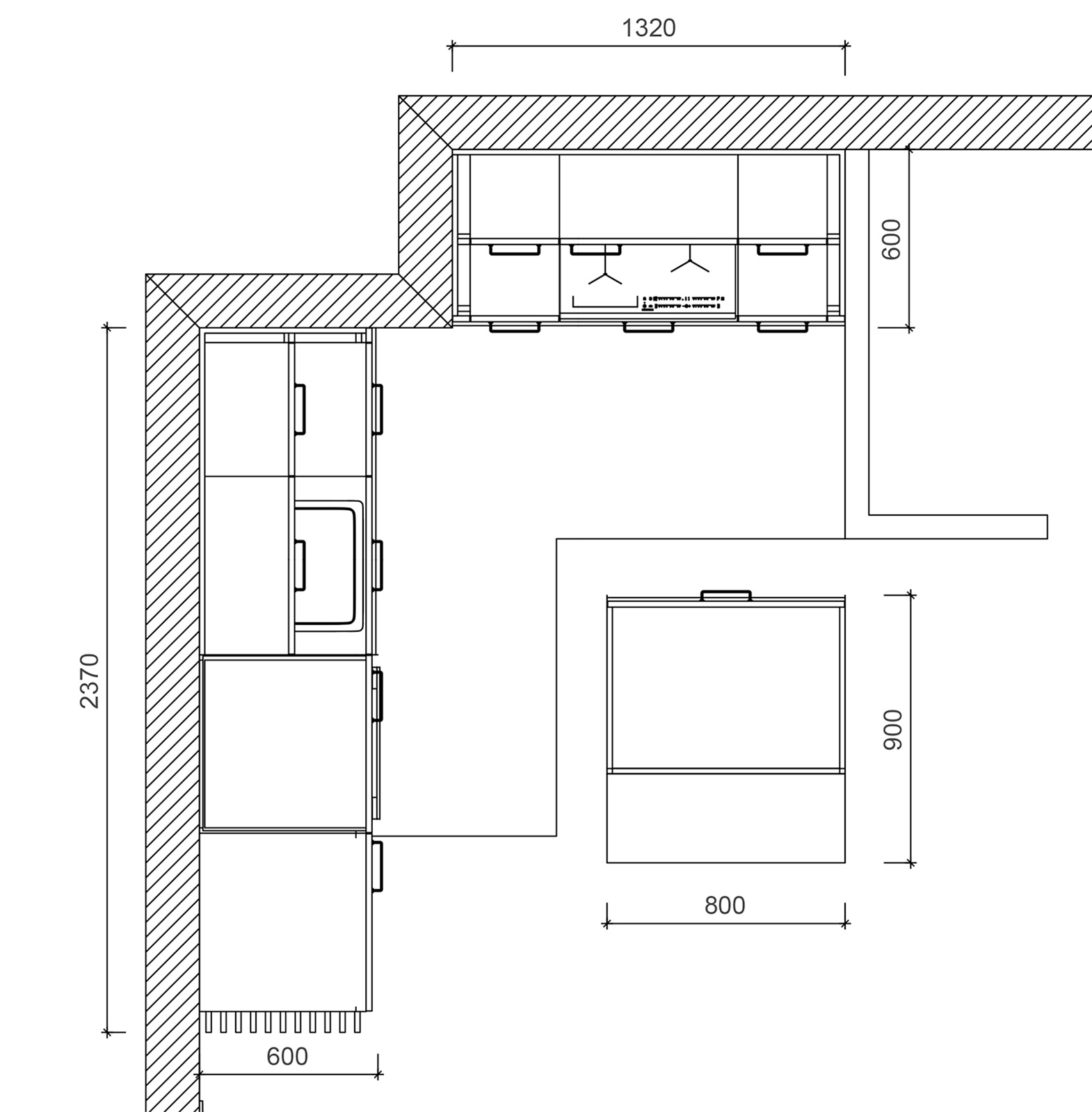
Aranżacja małej kuchni w bloku – przykład mojej realizacji
W tej realizacji Klientka marzyła o funkcjonalnej- jasnej kuchni, w której każdy element ma swoje miejsce. Pomieszczenie było niewielkie i pozbawione okna, dlatego priorytetem stało się optyczne powiększenie przestrzeni oraz zaplanowanie układu, który pozwoli wygodnie gotować, przechowywać i utrzymywać porządek.
Aby uzyskać komfortowy dostęp do strefy gotowania, zaprojektowałam płytę indukcyjną na środku głównej ściany. Pod nią umieściłam zestaw szuflad na najczęściej używane akcesoria, a po bokach wąskie carga marki PEKA, idealne do przechowywania przypraw oraz produktów sypkich. Dzięki temu wszystko, co potrzebne podczas gotowania, znajduje się pod ręką.
Po lewej stronie znalazła się zmywarka, zlew oraz słupek z piekarnikiem umieszczonym wyżej, co było jednym z głównych oczekiwań Klientki. Zabudowę zamyka lodówka w wysokiej zabudowie, a całość oddzieliłam od salonu pionowymi lamelami, które tworzą subtelną granicę między strefami i wprowadzają przytulny rytm we wnętrzu.

Projekt: Emilia Patysiak | Patysiak Kuchnie
Tak rozplanowany układ pozwolił na zachowanie zasad ergonomii – zlew, płyta i strefa przechowywania tworzą spójny ciąg roboczy. Brak miejsca na pełnowymiarowy blat rozwiązałam, projektując niewielką wyspę kuchenną, która pełni jednocześnie funkcję dodatkowego blatu i miejsca do spożywania szybkich posiłków. Zachowałam przy tym odpowiednią szerokość przejścia, by komunikacja między kuchnią a salonem była swobodna.
W małej kuchni kluczowe jest maksymalne wykorzystanie pionu, dlatego zaprojektowałam meble kuchenne do sufitu. W wyższych partiach umieściłam pogłębione szafki pawlaczowe, które pomieszczą rzadziej używane sprzęty i zapasy. Ich dolną krawędź wykorzystałam na dodatkowe oświetlenie LED, które doświetla przestrzeń roboczą i rozjaśnia pomieszczenie pozbawione naturalnego światła. Kolejny pasek LED zamontowałam pod płytszymi, wiszącymi szafkami – dzięki temu blat roboczy jest równomiernie oświetlony i wygodny w codziennym użytkowaniu.

Projekt: Emilia Patysiak | Patysiak Kuchnie
Całość utrzymana została w jasnej palecie barw. Połączyłam fronty w odcieniach delikatnej szarości z ciepłym drewnem, co optycznie powiększa wnętrze, a jednocześnie dodaje mu przytulności. Taka kompozycja kolorystyczna w połączeniu z prostą linią mebli i gładkimi frontami tworzy harmonijną przestrzeń, która nie przytłacza, mimo niewielkiego metrażu.
Jeśli chcesz wiedzieć co wpływa na cenę kuchni na wymiar przeczytaj mój inny wpis –> Ile kosztuje kuchnia na wymiar?
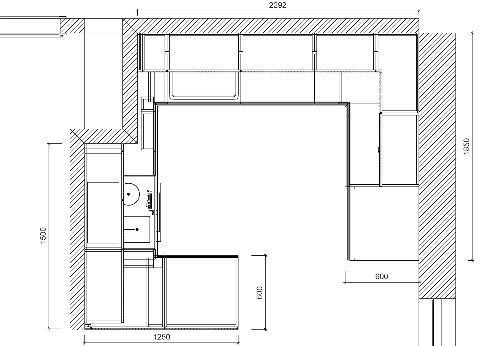
Projekt niewielkiej kuchni w bloku – przykład z mojej realizacji
Poniższa realizacja to przykład na to, jak połączyć estetykę z funkcjonalnością, nawet w niewielkiej kuchni z ograniczeniami konstrukcyjnymi. Klienci chcieli uzyskać jak największą powierzchnię blatu roboczego oraz maksymalnie wykorzystać przestrzeń do przechowywania. Największym wyzwaniem był komin, który utrudniał zabudowę i zabierał cenne centymetry. Moim celem było więc takie zaprojektowanie układu, by wizualnie go ukryć i zachować proporcje pomieszczenia.

Projekt: Emilia Patysiak | Patysiak Kuchnie
Z prawej strony zaprojektowałam jeden wysoki słupek z zabudowaną lodówką. Obok znalazła się szafka półnarożna z systemem LeMans firmy PEKA, następnie wąskie cargo z dwiema półkami PEKA, zmywarka i zlew. W kolejnym narożniku ukryłam komin, integrując go z zabudową, dzięki czemu nie dominuje w przestrzeni. Dalej umieściłam drugie cargo z systemem PEKA, a obok piekarnik z płytą indukcyjną. Całość zamyka półwysep, który tworzy dodatkowy blat roboczy i oddziela kuchnię od strefy dziennej.
Nietypowy narożnik półwyspu nie był dostępny od strony kuchni, dlatego wykorzystałam go jako szafkę otwieraną od strony salonu – dzięki temu każdy fragment zabudowy zyskał funkcję użytkową. Ostatni moduł od strony kuchni to szuflady robocze, których tylna ściana została estetycznie zamaskowana.

Projekt: Emilia Patysiak | Patysiak Kuchnie
Ze względu na brak miejsca na klasyczny słupek z piekarnikiem i mikrofalą, zaproponowałam zabudowę mikrofali w górnej szafce jako rozwiązanie, które pozwoliło odzyskać przestrzeń na blacie i zachować czystość formy.
Dolne fronty wykonałam w wersji zintegrowanej z frezowanym uchwytem, co nadało meblom minimalistyczny charakter i pozwoliło zrezygnować z dodatkowych okuć. Górne szafki ozdobiłam ryflowanymi frontami, które wprowadzają pionowy rytm i optycznie podnoszą pomieszczenie. Aby wnętrze nie wydawało się ciężkie, połączyłam jasny blat i jasne górne szafki z ciemniejszą dolną zabudową, co zrównoważyło proporcje i nadało przestrzeni lekkości.
Jasne powierzchnie i pionowe ryfle pomogły nie tylko zamaskować komin, ale też rozjaśniły wnętrze i dodały mu elegancji. Efekt końcowy to harmonijna, funkcjonalna kuchnia, w której każdy detal został przemyślany.
Przeczytaj również –> Kuchnia w kształcie litery U – jak ją urządzić, by była funkcjonalna?

Projekt: Emilia Patysiak | Patysiak Kuchnie
Ulubione triki projektantki na funkcjonalną i piękną kuchnię
- Półwysep z funkcją blatu roboczego i jadalni – świetna alternatywa dla stołu.
- Zabudowa do sufitu – na dole codzienność, na górze zapasy i rzeczy sezonowe.
- Cargo i relingi – małe elementy, które robią dużą różnicę w organizacji.
- Oświetlenie LED w cokole mebli – efekt przestrzeni „od dołu”, bardzo lubiany przez klientów.
- Fronty w jasnych, ale ciepłych kolorach – mniej sterylnie niż biel, bardziej przytulnie.
- Otwarte półki z oświetleniem – dekoracyjne, ale i praktyczne.
To właśnie takie detale tworzą kuchnie, które działają na co dzień i nie nudzą się po kilku miesiącach. W małych wnętrzach każdy detal ma znaczenie – a dobrze przemyślane projekty kuchni sprawiają, że wszystko jest na swoim miejscu.
5 kluczowych zasad do zapamiętania podczas urządzania małej kuchni w bloku
- Zacznij od ergonomii – funkcjonalny układ to podstawa.
- Wybierz zabudowę do sufitu – to więcej miejsca bez utraty przestrzeni.
- Dobierz kompaktowe AGD i ukryj je w spójnej zabudowie.
- Postaw na jasne kolory i optyczne triki – światło, szkło, połysk.
- Unikaj chaosu – konsekwentny styl daje spokój i porządek.
Zaprojektowanie małej kuchni to sztuka łączenia ergonomii, estetyki i maksymalnego wykorzystania przestrzeni. Przygotowałam krótką checklistę, dzięki której szybko ocenisz, czy Twoja kuchnia działa tak, jak powinna — albo co warto w niej poprawić, zanim zaczniesz remont.
| Pytanie kontrolne | TAK/NIE |
|---|---|
| Czy układ kuchni uwzględnia wygodny ciąg roboczy (lodówka–zlew–płyta)? | |
| Czy blat roboczy ma co najmniej 120 cm ciągłej powierzchni? | |
| Czy górne szafki są zaprojektowane do sufitu, by maksymalnie wykorzystać przestrzeń? | |
| Czy w narożnikach zastosowano systemy zwiększające funkcjonalność (np. LeMans / karuzela)? | |
| Czy są miejsca na wąskie cargo lub inne rozwiązania do mikroprzestrzeni? | |
| Czy wybrane AGD jest kompaktowe lub wielofunkcyjne? | |
| Czy w strefie roboczej zaplanowano dobre oświetlenie (np. LED pod szafkami)? | |
| Czy kolorystyka jest jasna, sprzyjająca optycznemu powiększeniu wnętrza? | |
| Czy zastosowano elementy odbijające światło (połysk, szkło, lacobel)? | |
| Czy uniknięto wizualnego chaosu (proste linie, spójne fronty, ukryte uchwyty)? | |
| Czy w kuchni przewidziano blat do szybkich posiłków (półwysep/mały stolik)? | |
| Czy kuchnia jest spójna stylistycznie z salonem (w przypadku aneksu)? |
Podsumowanie – jak urządzić małą kuchnię marzeń
Mała kuchnia w bloku nie musi być ograniczeniem. Może stać się dopracowaną, funkcjonalną przestrzenią, w której gotowanie i spędzanie czasu sprawia przyjemność. Kluczem jest przemyślany projekt – dopasowany do stylu życia, potrzeb i codziennych nawyków. Jeśli planujesz remont lub chcesz odświeżyć swoją kuchnię, zaplanuj ją razem ze mną. Pomogę Ci wydobyć potencjał nawet z najmniejszego metrażu i stworzyć wnętrze, które będzie pracować dla Ciebie każdego dnia. Zobacz moje realizacje, zainspiruj się rozwiązaniami i umów się na konsultację projektową, by wspólnie stworzyć kuchnię idealną dla Twojego stylu życia.
FAQ – najczęściej zadawane pytania
Jak urządzić małą kuchnię w bloku, żeby była funkcjonalna?
Jakie kolory najlepiej sprawdzają się w małej kuchni?
Jakie meble wybrać do małej kuchni w bloku?
Jak połączyć kuchnię z salonem w bloku?
Jakie AGD wybrać do małej kuchni?
Jak optycznie powiększyć małą kuchnię w bloku?
Jakie błędy najczęściej popełnia się przy urządzaniu małej kuchni?
Ile kosztuje remont małej kuchni w bloku?
Jakie płytki do małej kuchni w bloku?
Szukasz funkcjonalnych rozwiązań do swojej kuchni?
i zaprojektujmy ją razem.
Mała kuchnia w bloku – praktyczne rozwiązania i inspiracje projektantki
